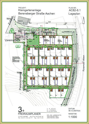
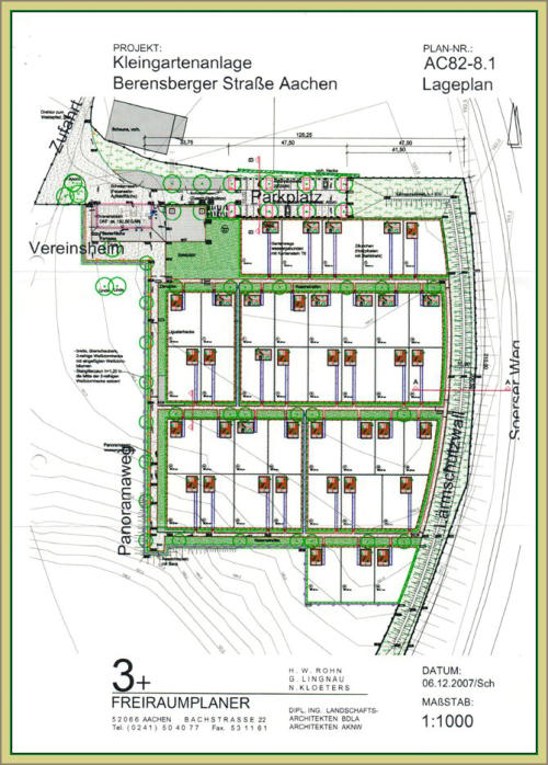
Der neue Standort im Luftbild Der neue Standort im Katasterplan Alter und neuer Standort im Luftbild Entwurf der neuen Anlage Ausführungsvariante Das neue Vereinsheim Das Vereinsheim im Grundriss Laube "Daun" Typ-A Laube "Daun" Typ-B Der Lageplan der neuen Anlage Sportpark-Soers